For Sale

$624,900

191 KING Street S Unit# 712 , Waterloo, Ontario N2J1R1

2 Beds 2 Baths

Remarks

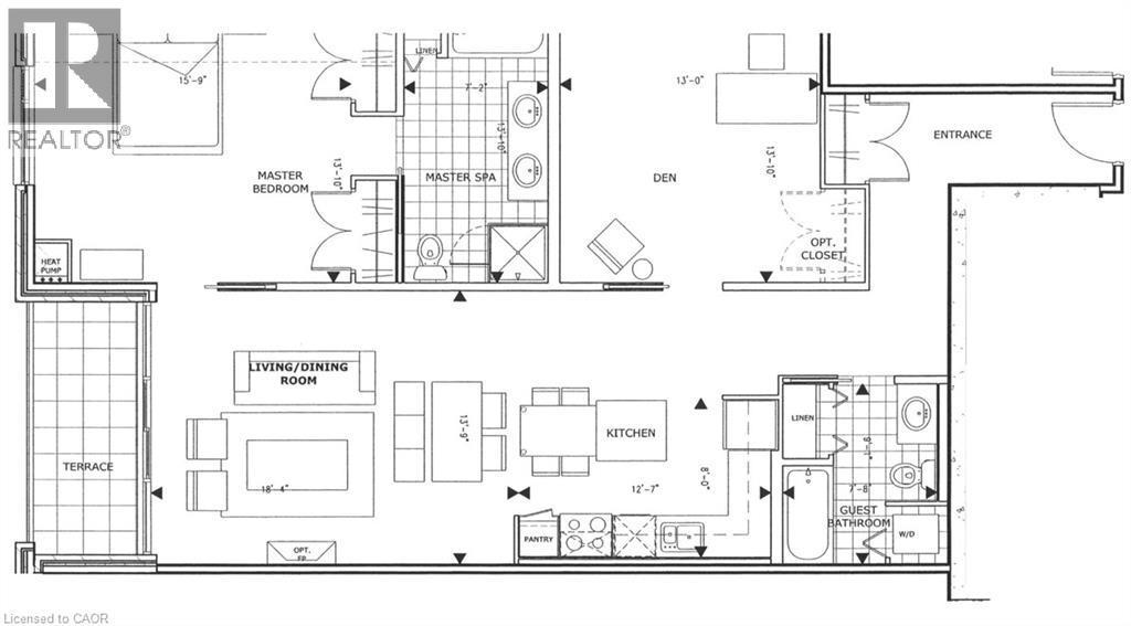
Spacious Condo unit at Bauer Loft. West Facing with floor to ceiling windows and balcony. Open concept with ample room in the living/dining area. 2 Bedrooms, 2 full bathrooms, granite counters, laminate in living area and carpet in Bedrooms. Steps to Bauer Market Place, Uptown Waterloo and Public Transit. Underground parking. Great Views! Amenities include fitness room, party room, and roof top terrace with barbecue. (id:27)

Property Summary

  • Condo Fees: $830.54 Monthly
  • No. of Parking Spaces: 1
  • Floor Space (approx): 1277 Square Feet
  • Built in: 2010
  • Bedrooms: 2
  • Bathrooms (Total): 2
  • Zoning: C2-25

Property Features:

  • Access Type:
    Rail access
  • Amenities Nearby:
    Hospital , [] , Public Transit , Schools , Shopping
  • Community Features:
    Community Centre
  • Features:
    Balcony , Automatic Garage Door Opener
  • Maintenance Fee Type:
    Insurance , Landscaping , Water , []
  • Ownership Type:
    Condominium
  • Parking Type:
    Underground , Covered
  • Property Type:
    Single Family
  • Sewer:
    Municipal sewage system
  • Storage Type:
    Locker

Building Features:

  • Amenities:
    Exercise Centre , Party Room
  • Appliances:
    Dishwasher , Dryer , Refrigerator , Stove , Water softener , Washer , Garage door opener
  • Basement Type:
    None
  • Building Type:
    Apartment
  • Construction Style - Attachment:
    Attached
  • Cooling Type:
    Central air conditioning
  • Exterior Finish:
    Brick
  • Heating Fuel:
    Natural gas

Rooms

  • Bathroom:
    Level: Main Measurements not available
  • Bedroom:
    Level: Main 13'10'' x 13'0''
  • Bathroom:
    Level: Main Measurements not available
  • Master Bedroom:
    Level: Main 15'9'' x 13'10''
  • Kitchen:
    Level: Main 18'4'' x 13'9''
Lifestyle
Neighbourhood Info
Jen Lema

Jen Lema

Salesperson/REALTOR®

Phone:  519.578.7300

Mobile:  647.200.8677

Fax:  519.742.9904

logo

Royal LePage Wolle Realty, Brokerage (Independently owned and operated)

71 Weber STREET EAST
Kitchener,  ON N2H1C6

Get More Info

Get More Info

Book a tour